144 858 ₽/м²
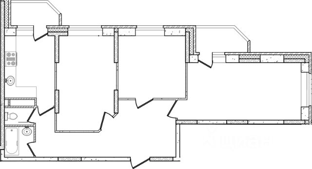
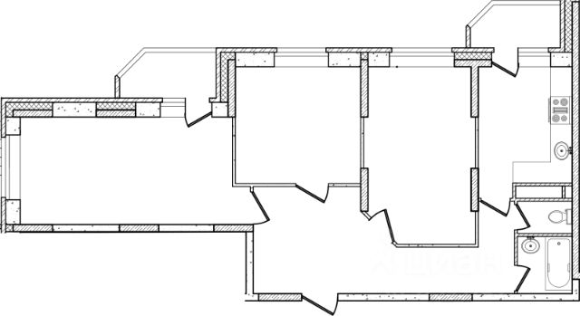
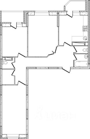
Продаётся 3-комнатная квартира в сданном доме (Пионерская, 15к1), срок сдачи: II-кв. 2023, общей площадью 73.3 кв.м., на 17 этаже. Расположение, транспортная доступность ЖК "Шепчинки" (старое название - ЖК "Чайковский") находится в одноименном районе города Подольск, в 20 км от МКАД по Варшавскому шоссе или 26 км по Симферопольскому шоссе. От Курского вокзала можно доехать на электричке до платформы "Кутузовская" и далее пройти пятнадцать минут до комплекса. Рядом с домами останавливаются автобусы и маршрутные такси, которые за пятнадцать минут довозят до железнодорожной станции "Подольск", от которой можно доехать на электричке до вокзала или на автобусе до метро "Аннино" или "Южная". Альтернативный вариант - за двадцать пять минут дойти до автобусной остановки на улице Кирова, где проходит муниципальный транспорт, доезжающий до метро. Электричка едет до платформы "Царицыно" примерно полчаса, до Курского вокзала - 50 минут. Шепчинки - район зеленый, застроенный преимущественно малоэтажными домами. В километре от комплекса начинается лесной массив, рядом есть парк (в микрорайоне Высотный) с асфальтированными дорожками и скамейками. В двух километрах протекает река Пахра с песчаными пляжами. Инфраструктура Пристройка к дому 36 по ул. Ватутина отведена под магазин. Внутри комплекса девелопер также строит два детских сада на 400 мест, а в соседнем дворе находится средняя школа 20, чуть дальше - лицей и школы 15 и 17. Продукты можно купить в расположенном рядом супермаркете "Дикси" и круглосуточном продуктовом магазине. Поблизости находятся: городская больница и поликлиника, аптека, отделение Сбербанка, торговые центры "Капитолий" и "Буратино", супермаркет "Магнит", продуктовый магазин "Зидар". В пешей досягаемости расположено несколько магазинов и компаний сферы услуг, Дворец спорта города Подольск и стадион. Около станции "Кутузово" работает ярмарка. Надежность застройщика Реализацией проекта ЖК "Шепчинки" занимается ООО "Региональная перерабатывающая компания", которая выиграла в 2007 году на аукционе право на застройку этого участка в соответствии с постановлением главы города Подольска "О развитии застроенной территории в границах улиц: Ватутина, Пионерская, Чайковского, Свердлова, Калинина, Щеглова, Белинского". Компания основана в 2003 году и занимается строительством жилья в Подольске, выполняя функции заказчика и застройщика. Не смотря на то, что строительство идет дольше, чем планировалось, ООО "РПК" объект не бросает и находит возможность решать возникающие проблемы. В частности, в апреле 2016 года состоялось совещание в Минстрое Московской области, где был намечен план действий в связи с финансовыми трудностями застройщика и приостановкой проекта. В итоге компании удалось получить кредит в Московском индустриальном банке, и строительство было продолжено в 2016 году. Кроме того, ЖК "Шепчинки" получил в этом банке официальную аккредитацию, а покупателям предоставлена возможность взять кредит под 11,9% годовых. Покупка квартир оформляет






















































































