Мы используем куки-файлы. Соглашение об использовании

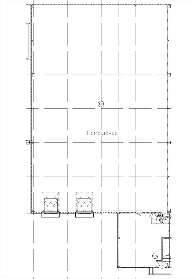
Склад 1 048,3м2 в технопарке

Площадь1 048,3 м²
Этаж1 из 1
Выс. потолков8.0 м.
Отчёт о привлекательности объектаУзнайте, насколько помещение и район подходят для вашего бизнеса
Что входит в отчёт
  • Охват населения
  • Пешеходный трафик
  • Автомобильный трафик
  • Средний бюджет семьи по району
  • Арендные ставки рядом
  • Точки притяжения
  • Конкуренты в радиусе 1 км
  • Рекомендации по выбору места для бизнеса
Аренда от собственника. 1000р/м2 в мес + OPEX Есть возможность объединить два бокса и увеличить площадь до 2.090,70м2. Рабочая высота 8 м. Шаг колон 12м х 24м. Доковые ворота Hоrmann c герметизаторами и уравнительными платформами - 2 шт Противопожарная сигнализация, гидранты. Полы антипыль. Нагрузка на пол 5 т./ кв. м. Уровень пола 1,2 м. Усиленная кровля. Парковка для 3-х легковых и 2-х грузовых автомобилей. Приточно-вытяжная вентиляция. Индивидуальные приборы учета. Высокоскоростной интернет. Круглосуточный режим работы и доступ на территорию по пропускам. Помещение расположено на стратегически важном направлении вблизи крупных транспортных магистралей, включая МКАД и федеральные автодороги: ЦКАД - 0,3 км, М2 - 0,5 км, МКАД - 28 км. Местоположение обеспечивает удобство и оперативность доставки товаров как в пределах Москвы, так и на дальние расстояния в различные регионы России.
lock

Войдите или зарегистрируйтесь
для просмотра информации

Просматривайте условия сделки и всю информацию об объекте
Сохраняйте фильтры в поиске и не вводите заново
Доступ к избранному с любого устройства
Неограниченное добавление в избранное
Позвоните автору
Вам ответят на все вопросы
Остались вопросы по объявлению?
Позвоните владельцу объявления и уточните необходимую информацию.
  • Инфраструктура
  • Похожие рядом
Помощь надёжных риелторов
Риелтор партнёр Циан поможет купить или продать любую недвижимость
СобственникID 23858601
  • Предоставил паспорт
1 048 300 ₽/мес.

Прямая аренда (от года), минимальный срок аренды 36 месяцев, обеспечительный платёж 2096600 ₽, предоплата за 1 месяц

14 688 $/мес.
12 526 /мес.
Цена за метр
12 000 ₽ в год
Налог
УСН
Комиссия
нет
Коммунальные платежи
не включены
Эксплуатационные расходы
не включены
СобственникID 23858601
  • Предоставил паспорт