Мы используем куки-файлы. Соглашение об использовании
Помещение свободного назначения, 4 700 м²
Площадь4 700 м²
Этаж1 из 3
Отчёт о привлекательности объектаУзнайте, насколько помещение и район подходят для вашего бизнеса
Что входит в отчёт
  • Охват населения
  • Пешеходный трафик
  • Автомобильный трафик
  • Средний бюджет семьи по району
  • Арендные ставки рядом
  • Точки притяжения
  • Конкуренты в радиусе 1 км
  • Рекомендации по выбору места для бизнеса
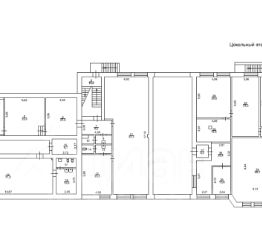
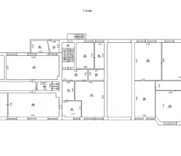
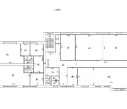
Предлагается в аренду АДМИНИСТРАТИВНОЕ ЗДАНИЕ на Симферопольском шоссе в 15 км. от МКАД в сторону Москвы (первая линия), общей площадью 4700 кв.м., расположенное по адресу: Московская область, г. Подольск, с. Покров, д.150. Здание состоит из 3-х этажей и подвала. Планировка офисная с возможностью перепланировки легких перегородок и организации открытых площадей для конференц-залов, и др. (техпаспорт по запросу). Коммуникации центральные. Выделенная электрическая мощность 100 кВт. (возможно увеличение). Вентиляция приточно-вытяжная, установлена пожарная сигнализация. На территории большая, бесплатная, парковка, кафе-столовая. К зданию примыкают складские помещения (отапливаемые и неотапливаемые) которые можно использовать под собственные нужды (оплачивается дополнительно). Отличная транспортная доступность: автобусная остановка в 100 м. от здания, 20 минут автобусом до МЦД Подольск, также автобусы до Москвы и в область.
lock

Войдите или зарегистрируйтесь
для просмотра информации

Просматривайте условия сделки и всю информацию об объекте
Сохраняйте фильтры в поиске и не вводите заново
Доступ к избранному с любого устройства
Неограниченное добавление в избранное
Позвоните автору
Вам ответят на все вопросы
Остались вопросы по объявлению?
Позвоните владельцу объявления и уточните необходимую информацию.
  • Инфраструктура
  • Похожие рядом
Помощь надёжных риелторов
Риелтор партнёр Циан поможет купить или продать любую недвижимость
4 325 000 ₽/мес.

Прямая аренда (от года), минимальный срок аренды 11 месяцев, доступны арендные каникулы, обеспечительный платёж 4325000 ₽, предоплата за 1 месяц

58 213 $/мес.
48 843 /мес.
Цена за метр
11 043 ₽ в год
Налог
НДС включен: 779 918 ₽
Комиссия
1%
Коммунальные платежи
не включены
Эксплуатационные расходы
включены
Агентство недвижимости
Суперагент