Мы используем куки-файлы. Соглашение об использовании
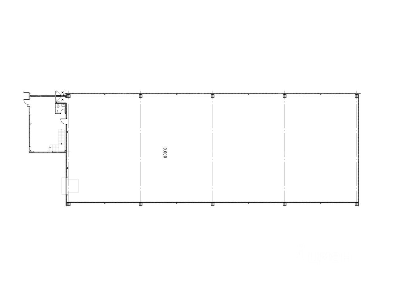
Площадь1 022,64 м²
Этаж1 из 1
Сетка колонн18x12
Выс. потолков8.0 м.
Отчёт о привлекательности объектаУзнайте, насколько помещение и район подходят для вашего бизнеса
Что входит в отчёт
  • Охват населения
  • Пешеходный трафик
  • Автомобильный трафик
  • Средний бюджет семьи по району
  • Арендные ставки рядом
  • Точки притяжения
  • Конкуренты в радиусе 1 км
  • Рекомендации по выбору места для бизнеса
Складское помещение 1 022.6 кв. м в "ICPARK Коледино". Прямая продажа, без комиссии. Направление: Юг. Шоссе: Симферопольское. Расстояние от МКАД: 24.8 км. Характеристики: - Класс: A; - Ворота: Доки; - Тип склада: Light Industrial; - Высота потолков: 8 м; - Нагрузка на пол: 5 т/ кв.м; - Система пожаротушения: Есть; - Тип пола: Полы с антипылевым покрытием; - Уровень пола: 1.2 м; - Шаг колонн: 18x12 м. Стоимость: 167 096 996.2 руб. Финансовые условия: - Оплачивается отдельно: НДС; - Налог: Включая НДС. Оформление сделки напрямую от собственника, без комиссии. Готовы оперативно организовать просмотр в удобное время, предоставить PDF-презентацию и план. Точное местоположение объекта можно найти по данным координатам: 55.373215,37.575247 ID = c_1783190
lock

Войдите или зарегистрируйтесь
для просмотра информации

Просматривайте условия сделки и всю информацию об объекте
Сохраняйте фильтры в поиске и не вводите заново
Доступ к избранному с любого устройства
Неограниченное добавление в избранное
Позвоните автору
Вам ответят на все вопросы
Остались вопросы по объявлению?
Позвоните владельцу объявления и уточните необходимую информацию.
  • Инфраструктура
  • Похожие рядом
Помощь надёжных риелторов
Риелтор партнёр Циан поможет купить или продать любую недвижимость
167 096 996 ₽
2 249 063 $
1 887 057
Цена за метр
163 398 ₽
Налог
НДС включен: 30 132 245 ₽
Агентство недвижимости
На Циан
12 лет
Объектов в работе
более 1000