Мы используем куки-файлы. Соглашение об использовании
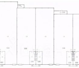
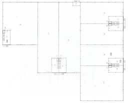
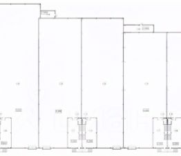
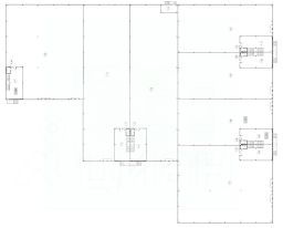
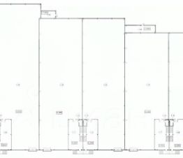
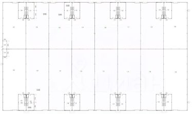
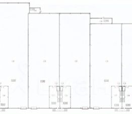
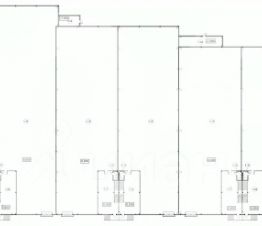
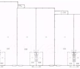
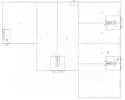
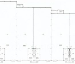
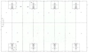
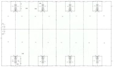
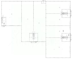
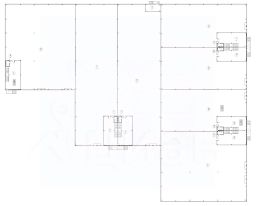
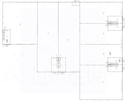
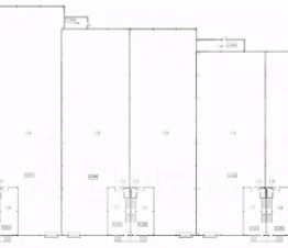
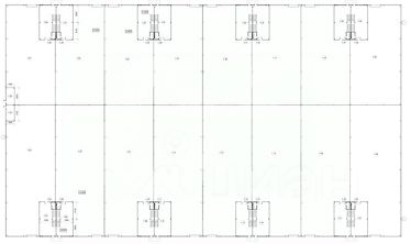
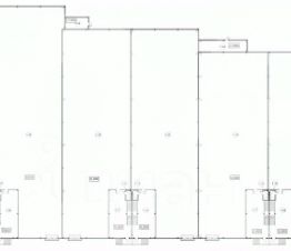
Площади640,1 – 28 800 м²
Этаж1 из 1
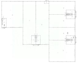
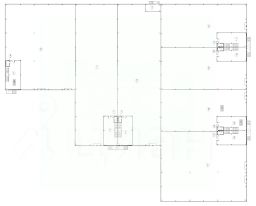
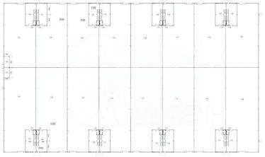
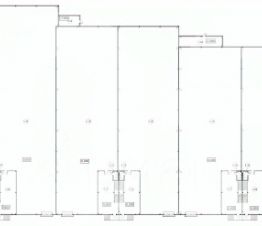
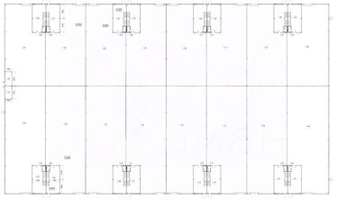
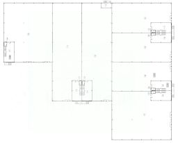
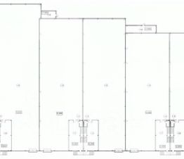
Сетка колонн18х12
Выс. потолков8.0 м.
ПомещениеСвободно
Отчёт о привлекательности объектаУзнайте, насколько помещение и район подходят для вашего бизнеса
Что входит в отчёт
  • Охват населения
  • Пешеходный трафик
  • Автомобильный трафик
  • Средний бюджет семьи по району
  • Арендные ставки рядом
  • Точки притяжения
  • Конкуренты в радиусе 1 км
  • Рекомендации по выбору места для бизнеса
Доступно 28 площадей
640,1 м²
1 этаж
96 015 000 ₽
150 000 ₽/м²
1289 м²
1 этаж
193 350 000 ₽
150 000 ₽/м²
1547,7 м²
1 этаж
232 155 000 ₽
150 000 ₽/м²
1944,6 м²
1 этаж
291 690 000 ₽
150 000 ₽/м²
2594,8 м²
1 этаж
389 220 000 ₽
150 000 ₽/м²
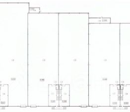
Отапливаемый склад на продажу от собственника без комиссии. Класс B+. Объявление актуально. 28 км от МКАД. Никаких скрытых платежей. Открыты к диалогу по условиям продажи. >ID объекта 4386. Добавьте в избранное, чтобы не потерять! 28 км от МКАД по Варшавскому шоссе Парковка для грузового и легкового транспорта Технические характеристики: Нагрузка на пол: 5 т/кв. м Ворота: Докового типа, На нулевой отметке Температурный режим: Отапливаемый склад Мощность: 770 кВт на 3 корпуса Высота потолка: 8 м Пол: Бетон-Антипыль Строится, доступ с 01.08.2026 Наличие ж/д подъезда: Да Оптоволоконные коммуникации связи Пропускная система Охранная и пожарная сигнализации Коммерческие условия: Цена за кв. м: 150 000 руб/кв. м с НДС Варианты реализации: Продажа блока площадью 640.1 кв. м (включая офисы 74.7 кв. м) Ворота: 1 шт. (На нулевой отметке) Продажа блока площадью 1 289 кв. м (включая офисы 150.4 кв. м) Ворота: 2 шт. (На нулевой отметке) Продажа блока площадью 1 547.7 кв. м (включая офисы 79.9 кв. м) Ворота: 1 шт. (Докового типа) Продажа блока площадью 1 944.6 кв. м (включая офисы 225.1 кв. м) Ворота: 3 шт. (На нулевой отметке) Продажа блока площадью 2 594.8 кв. м (включая офисы 300.8 кв. м) Ворота: 4 шт. (На нулевой отметке) Продажа блока площадью 2 634.6 кв. м (включая офисы 154.6 кв. м) Ворота: 2 шт. (Докового типа) Продажа блока площадью 3 250.4 кв. м (включая офисы 375.5 кв. м) Ворота: 5 шт. (На нулевой отметке) Продажа блока площадью 3 719 кв. м (включая офисы 230.3 кв. м) Ворота: 3 шт. (Докового типа) Продажа блока площадью 3 900.6 кв. м (включая офисы 451.2 кв. м) Ворота: 6 шт. (На нулевой отметке) Продажа блока площадью 4 556.2 кв. м (включая офисы 525.9 кв. м) Ворота: 7 шт. (На нулевой отметке) Продажа блока площадью 4 698.5 кв. м (включая офисы 305 кв. м) Ворота: 4 шт. (Докового типа) Продажа блока площадью 5 230.5 кв. м (включая офисы 601.6 кв. м) Ворота: 8 шт. (На нулевой отметке) Продажа блока площадью 5 655 кв. м (включая офисы 380.7 кв. м) Ворота: 5 шт. (Докового типа) Продажа блока площадью 6 117.1 кв. м (включая офисы 677.3 кв. м) Ворота: 9 шт. (На нулевой отметке) Продажа блока площадью 6 540.8 кв. м (включая офисы 455.4 кв. м) Ворота: 6 шт. (Докового типа) Продажа блока площадью 6 976.7 кв. м (включая офисы 752 кв. м) Ворота: 10 шт. (На нулевой отметке) Продажа блока площадью 6 987.3 кв. м (включая офисы 559.3 кв. м) Корпус 2 целиком Ворота: 7 шт. (Докового типа) Продажа блока площадью 7 406.3 кв. м (включая офисы 531.1 кв. м) Ворота: 7 шт. (Докового типа) Продажа блока площадью 7 828.8 кв. м (включая офисы 827.7 кв. м) Ворота: 11 шт. (На нулевой отметке) Продажа блока площадью 8 278.4 кв. м (включая офисы 605.8 кв. м) Ворота: 8 шт. (Докового типа) Продажа блока площадью 8 688.4 кв. м (включая офисы 902.4 кв. м) Ворота: 12 шт. (На нулевой отметке) Продажа блока площадью 9 540.5 кв. м (включая офисы 978.1 кв. м) Ворота: 13 шт. (На нулевой отметке) Продажа блока площадью 10 003.6 кв. м (включая офис
lock

Войдите или зарегистрируйтесь
для просмотра информации

Просматривайте условия сделки и всю информацию об объекте
Сохраняйте фильтры в поиске и не вводите заново
Доступ к избранному с любого устройства
Неограниченное добавление в избранное
Позвоните автору
Вам ответят на все вопросы
Остались вопросы по объявлению?
Позвоните владельцу объявления и уточните необходимую информацию.
  • Инфраструктура
  • Похожие рядом
  • Общая площадь28 800 м²
Помощь надёжных риелторов
Риелтор партнёр Циан поможет купить или продать любую недвижимость
96 015 000 – 4 320 000 000 ₽
от 1 259 717 до 56 678 400 $
от 1 077 288 до 48 470 400 €
Цена за метр
от 150 000 ₽
Налог
НДС включен: 779 016 393 ₽
Агентство недвижимости
Документы проверены
На Циан
15 лет
Объектов в работе
более 5000