164 836 ₽/м²
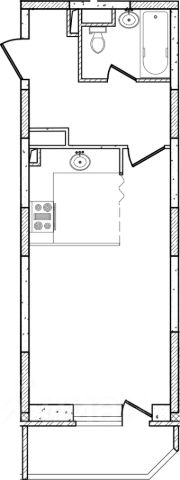
Продаётся 1-комнатная квартира в сданном доме (Народная, 23к1), срок сдачи: IV-кв. 2022, общей площадью 42.5 кв.м., на 2 этаже. Расположение, транспортная доступность Жилой комплекс эконом-класса "Дом на Народной" ("Народный") возводится в центре подмосковного Подольска, в микрорайоне Шепчинки, на месте старых домов. Шестисекционный кирпично-монолитный дом расположится вблизи большой лесопарковой зоны (10 минут пути), где жители смогут гулять и дышать свежим воздухом в любое удобное время. Рядом с "Народным" находятся автотрассы и остановки транспорта, поэтому добраться в другие районы Подольска или в Москву будет просто. От Кольцевой дороги "Дом на Народной" отделяют примерно 17 километров по Варшавскому шоссе. До ближайших станций метро - 30-40 минут езды ("Текстильщики", "Бульвар Дмитрия Донского"), до железнодорожной станции - всего 5 минут. Место строительства "Дома на Народной" выбрано весьма удачно: рядом с жилым кварталом нет крупных производств. Инфраструктура На территории "Дома на Народной" запланированы наиболее необходимые для комфортного проживания объекты инфраструктуры. Автомобилистам предлагается оставить транспорт внутри вместительного подземного паркинга на 500 машин. Гости, приезжающие в "Дом на Народной", смогут воспользоваться отдельной парковкой, рассчитанной примерно на 80 мест. Во дворе новостройки эконом-класса будут оборудованы детские площадки, а также спортивные зоны, места для семейного отдыха. Для магазинов и офисов предусмотрены коммерческие помещения на первом этаже. Инфраструктура вокруг "Дома на Народной" (в центральной части Подольска) отвечает нуждам каждой семьи: поблизости функционируют три детсада, две школы и лицей, крупные супермаркеты, городская поликлиника. От "Дома на Народной" до ближайших учебных заведений нужно пройти всего 250-300 метров. На общественном транспорте можно добраться до Дворца спорта, Ледового дворца, дома творчества, школ искусств и филиалов московских вузов. Надежность застройщика Застройщиком дома выступает ООО "ГлавГрадоСтрой" - участник рынка жилищного строительства с 2004 года. Компания активно занимается реконструкцией и благоустройством жилых домов в Подмосковье, в ее послужном списке более десятка построенных многоквартирных домов, включая проекты "Шепчинки" и "Красная Горка" на территории Подольска. Архитектура "Дом на Народной" строится двумя очередями: первое трехсекционное здание сдано в 2014 году, второе планируется сдать в 2016 году. Кирпично-монолитные секции имеют переменную этажность - от 12 до 20 этажей. Дом отделан кирпичом, отделка выполнена в теплой цветовой гамме. В новостройке эконом-класса представлены квартиры площадью до 98 квадратных метров (трехкомнатные), наименьшие - от 39 квадратных метров (однокомнатные). В "Доме на Народной" квартиры продаются как с черновой отделкой, так и без нее. Во всех квартирах есть межкомнатные перегородки, балконы, лоджии, произведена электрическая разводка (розетки и выключатели установлены за счет застройщика). Высота Купить квартиру в новостройке в микрорайоне Шепчинки в городе Подольск.










































































